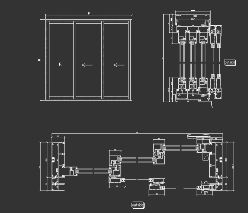
We are committed to addressing the systemic conflict between maximizing natural ventilation needs and ensuring biological safety in buildings located in subtropical regions. The 150 Series Three-Track Thermal Break Sliding Door System provides a dynamic building envelope solution that integrates ultra-low energy consumption, all-day ventilation, and biological particulate control for biological laboratories, tropical resort hotels, and ecologically sensitive buildings. This is achieved through an innovative three-track, four-cavity thermal break structure and an independently operable flyscreen matrix. The system utilizes gradient thermal break composite technology, integrating double-layer polyamide 66-GF25 thermal breaks within the 6063-T6 aluminum alloy main frame, combined with a center-mounted liftable Low-E triple-glazed vacuum unit. This achieves a breakthrough in photothermal performance with an annual comprehensive heat transfer coefficient of K ≤ 0.82 W/(m²·K) while maintaining visible light transmittance ≥ 75%.
The system’s core innovation lies in its three-layer independent track structure: the upper track supports the main thermal break door panel, equipped with a self-compensating sealing system and pressure balancing device; the middle track operates the first layer of 304 stainless steel microporous flyscreen (aperture 0.6mm); the lower track is configured with a second layer of nano-silver-coated anti-mold and insect-resistant composite screen. The dual-screen system can operate independently or in coordination, achieving a 99.7% blocking rate for insects and pollen particles while ensuring an air exchange rate ≥ 35 m³/(h·m²). The flyscreen lifting mechanism employs maglev silent tracks and a self-cleaning system, ensuring maintenance-free operation for ten years even in environments with humidity > 80%.
Choosing the 150 Series Three-Track Thermal Break Sliding Door System represents a technological reconfiguration of ecological boundary management in modern architecture. By dynamically integrating climate buffer zones and biological protection layers, it simultaneously optimizes energy efficiency, ventilation flexibility, and biological safety levels for the first time in specialized scenarios such as tropical infectious disease hospitals, nature reserve visitor centers, and precision agriculture greenhouses. The system is equipped with an intelligent climate sensor network that continuously monitors indoor and outdoor microenvironment parameters, automatically adjusting the coordination strategy between the flyscreens and door panels. It provides verifiable protective performance meeting ISO 14644-1 cleanliness standards for life science facilities and ecological buildings, ensuring a design lifespan of no less than thirty years even in high-temperature and high-humidity environments.
