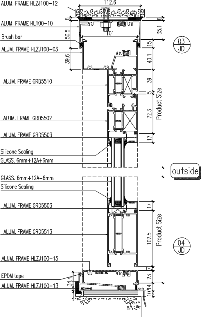
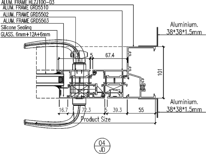
We are committed to addressing the challenges of energy dissipation and thermal comfort balance in entrance systems of modern buildings. The 100 Series Thermal Break Casement Door System provides an ultra-low-energy casement solution that meets Passive House certification standards for passive buildings, high-end residences in cold climates, and constant-temperature, constant-humidity laboratory spaces. This is achieved through a multi-chamber composite thermal break design and a climate-responsive sealing system. The system utilizes a composite structure of glass fiber-reinforced polyamide 66 thermal break strips and 6063-T6 aluminum alloy, with a linear thermal conductivity coefficient as low as 0.18W/(m·K). Combined with triple-glazed Low-E argon-filled glass units, it achieves an exceptional thermal insulation performance with a whole-door U-value ≤0.85W/(m²·K), improving energy efficiency by up to 75% compared to traditional non-thermal break systems.
The core technology of the system lies in its climate-adaptive pressure balance system: the door perimeter is equipped with memory elastomer gaskets that automatically adjust sealing pressure based on temperature differences, maintaining constant airtightness within an environmental temperature range of -30°C to 50°C; the concealed multi-point locking system incorporates thermal expansion compensation design, ensuring five continuous sealing interfaces even under extreme temperature conditions; the heavy-duty hinge system features built-in thermal break spacers and self-lubricating bearings, with each hinge supporting a load capacity of 180kg while reducing thermal conduction losses by 60%. We provide all-climate solutions, including anti-condensation drainage channels, integrated threshold heating systems, and three preset sealing schemes adapted to different climate zones, meeting standards such as PHI, LEED, and China's near-zero energy building technical requirements.
Choosing the 100 Series Thermal Break Casement Door System represents a scientific practice in the energy integrity of building envelopes. Through precise thermal engineering calculations and climate data-driven design, it achieves three breakthroughs—energy consumption control, condensation prevention, and long-term dimensional stability—in scenarios extremely sensitive to temperature fluctuations, such as polar research stations, biological sample repositories, and precision instrument workshops. Its intelligent sealing mechanism dynamically responds to external climate changes, ensuring that system performance degradation does not exceed 10% of the design value even after twenty-five years in harsh environments.


