INFORMATION
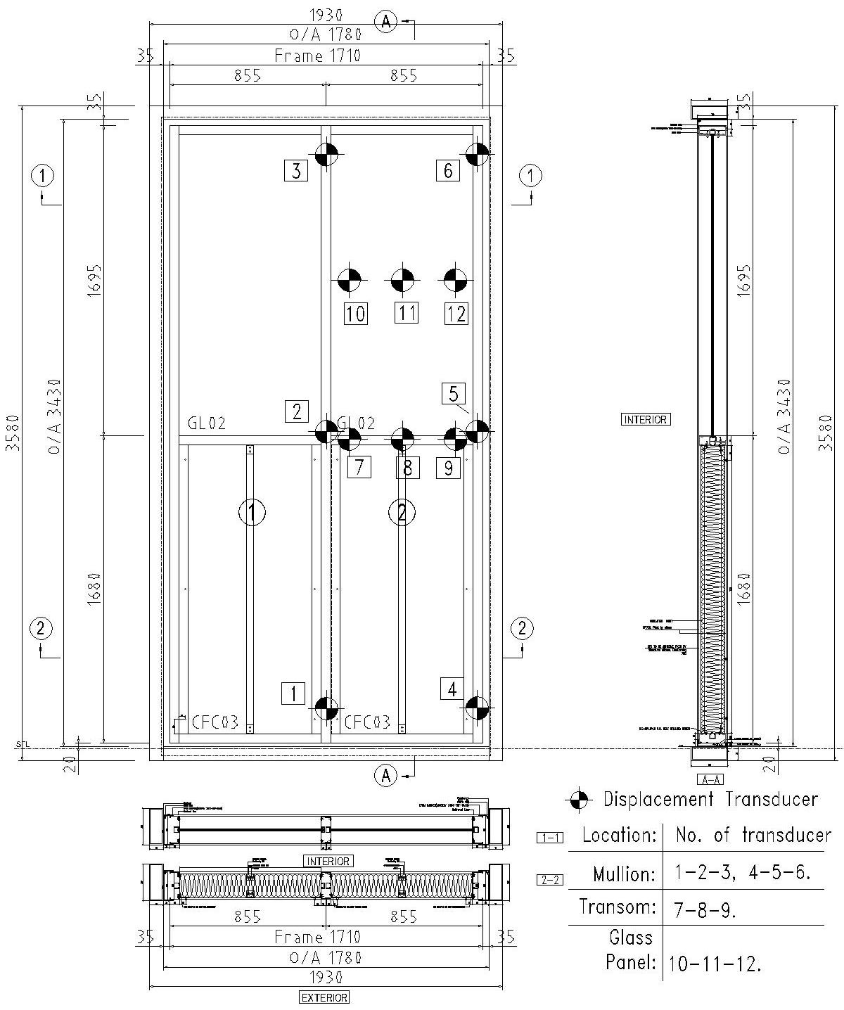
| System | 100 non thermal broken series Sliding door |
| Brand | DIMAX |
| Material | 6063-T5 |
| Certification | AS2047 |
| Glass | Single-pane glass, laminated glass, double-layer tempered glass, tempered laminated glass, triple-layer tempered glass |
| Powder-coat | Interpon, Dulux (warranty treatment 10/20 years) |
| Hardware | KIN LONG,BONWAY,Doric and so on |
| Configuration | XXO,OXX,OXXXXO,corner slider or customized design |
| Flyscreen | Fiberglass/Stainless steel available |
| Fixing Method | Sub sill/Sub head/Finx fix/Face fix/Timber reveal available |
| Air Infiltration | 75pa |
| Design Wind Pressure | 1200pa |
| Water Resistance | 450Pa |
| Ufimate Wind Pressure | 3000pa |
| Operating Force Test | 200/160N |
| Insulative Effectiveness | Configure according to the project requirements |
| soundlnsulafion | Configure according to the project requirements |
As a vital component of building opening solutions, non-thermal break sliding doors and windows continue to be favored in projects worldwide for their outstanding structural strength and timeless design aesthetics. Our carefully curated 100 Non-Thermal Break Sliding Door & Window Series meets diverse needs—from residential to commercial spaces—balancing functionality and visual appeal to deliver durable, high-performance opening systems.
In terms of materials and craftsmanship, this series strictly employs high-strength aluminum alloy profiles combined with precision extrusion technology, ensuring superior wind pressure resistance and dimensional stability. The non-thermal break design is particularly effective in regions with mild temperature variations or moderate climates, offering an optimal balance between performance needs and cost efficiency while maintaining exceptional durability and low maintenance requirements. The product range includes various operation styles and configurations, such as single-track, dual-track, and multi-panel sliding systems, accommodating openings of different widths and heights.
