COMPOSITE PACKING FUNCTION
SIMPLE OPERATION
CENTRALIZED CONTROL
EASY MAINTENANCE
COMPACT DIMENSIONS
ACCURATE WEIGHING SYSTEM
OPEN FOR CUSTOMIZATION




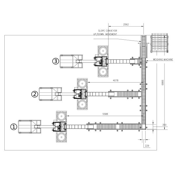
PLASTIC BAG PACKING MACHINE SET | vibrating hopper, magnetic lifting machine, weighing scale, vibrating hopper, slope conveyor, PLC and touch screen |
CARTON CONVEYING LINE | counter display, roller conveyor, conveyor jointing lifting belt, weighing machine(weight recheck), adjustable roller conveying board (motorized) |
ELECTRIC CONTROL SYSTEM & OPERATION PANEL | PLC and touch screen |
OTHER AUXILIARY/FUNCTION AVAILABLE FOR OPTION | real-time printing and labeling machine, etc |








