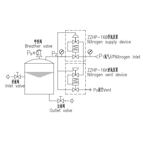
Nitrogen is on the upper end of the refined oil inside the tank, the pressure, usually around
100mmH2O, is controlled by the nitrogen seal device. When the outlet valve opens, the inner tank
level drops in the meantime ZZHP-16B nitrogen supply valve is opened to supply nitrogen into
the tank, until the pressure is up to the setting point; when the inlet valve opens, the level ups, the
nitrogen pressure increases and then ZZHP-16B nitrogen supply valve is closed. ZZHP-16K nitrogen
vent valve is opened under the pressure controller; the nitrogen is released until the pressure is
lowered to the setting point. To ensure the safety of the tank, it shall be provided with breather valve
at the tank top.
Nitrogen supply pressure P2 setting: the setting point P2 is selected, for example 1kPa (100mmH2O),
is adjusted by the pressure setting spring.
Nitrogen vent pressure Po setting: adjust the pressure controller and adjust the pressure setting
spring pre-compression set, Po should be much higher than P2, for example 2kPa (200H2O), to avoid
the frequent open and close.
Breather valve pressure Pb setting: when the nitrogen supply and nitrogen vent pressure is set, to
avoid the frequent open and close, breather valve pressure Pb should be higher than Po, and the
difference between the pressures cannot be too small, for example 3kPa (300mmH2O).
Nitrogen supply pressure P2, nitrogen vent Po and breather valve pressure Pb: Pb>Po>P2.
1. The pressure position of ZZHP-16B nitrogen supply valve should be near the tank.
2. The pressure gauge should be close to the pressure point.
3. ZZYP-16B nitrogen supply valve outlet pipeline should be bigger than inlet pipeline
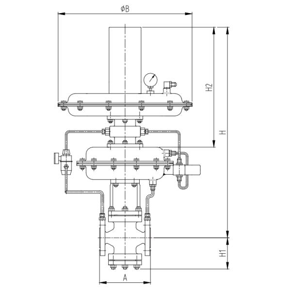
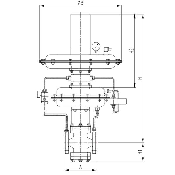
External Dimensions and Weight

Valve size mm(inch) | 20 (¾) | 25 (1) | 32 (1¼) | 40 (1½) | 50 (2) | 65 (2½) | 80 (3) | 100 (4) | 125 (5) | 150 (6) |
| A | 150 | 160 | 180 | 200 | 230 | 290 | 310 | 350 | 400 | 480 |
| H | 640 | 640 | 650 | 650 | 660 | 700 | 700 | 750 | 800 | 800 |
| H1 | 85 | 85 | 100 | 100 | 110 | 140 | 150 | 165 | 200 | 225 |
| H2 | 390 | 390 | 390 | 435 | 435 | 435 | 435 | 435 | 565 | 565 |
| ØB | 308 | 308 | 308 | 394 | 394 | 394 | 394 | 394 | 498 | 498 |
重量(kg) Weight | 26 | 26 | 35 | 40 | 50 | 72 | 90 | 114 | 130 | 144 |
Application Example (For Nitrogen Seal Device)

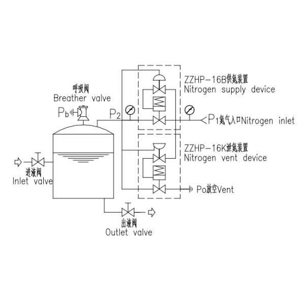
Nitrogen is on the upper end of the refined oil inside the tank, the pressure, usually around
100mmH2O, is controlled by the nitrogen seal device. When the outlet valve opens, the inner tank
level drops in the meantime ZZHP-16B nitrogen supply valve is opened to supply nitrogen into
the tank, until the pressure is up to the setting point; when the inlet valve opens, the level ups, the
nitrogen pressure increases and then ZZHP-16B nitrogen supply valve is closed. ZZHP-16K nitrogen
vent valve is opened under the pressure controller; the nitrogen is released until the pressure is
lowered to the setting point. To ensure the safety of the tank, it shall be provided with breather valve
at the tank top.
Nitrogen supply pressure P2 setting: the setting point P2 is selected, for example 1kPa (100mmH2O),
is adjusted by the pressure setting spring.
Nitrogen vent pressure Po setting: adjust the pressure controller and adjust the pressure setting
spring pre-compression set, Po should be much higher than P2, for example 2kPa (200H2O), to avoid
the frequent open and close.
Breather valve pressure Pb setting: when the nitrogen supply and nitrogen vent pressure is set, to
avoid the frequent open and close, breather valve pressure Pb should be higher than Po, and the
difference between the pressures cannot be too small, for example 3kPa (300mmH2O).
Nitrogen supply pressure P2, nitrogen vent Po and breather valve pressure Pb: Pb>Po>P2.
1. The pressure position of ZZHP-16B nitrogen supply valve should be near the tank.
2. The pressure gauge should be close to the pressure point.
3. ZZYP-16B nitrogen supply valve outlet pipeline should be bigger than inlet pipeline.