Butt-welding Butterfly Valves in Triple Eccentric Metal Sealing , API 609
PRODUCT INTRODUCTION
Description
The Triple-eccentric design:shaft from the centerline of sealing surface to form the first eccentric;the shaft offsets from centerline of pipeline to form the second eccentric;and the scalene cone form the third eccentric.This design can make effectively use of the cam effect,and completely eliminate the friction between the seat and sealing surface in the 90°travel,preventing the valve fromleakage caused by the abrasion of the sealing face,and extend its service lifetime.
Basic Parameters
Size range:2”-128”(80mm-3200mm) (Note:the scope includes all the listed pressure class)
Pressure class:Class150,Class300, Class600, Class900, Class1500;PN25,PN40,PN63,PN100,PN150,PN260.
Connection type:wafer,lug,double flanged,butt-welded
Working temperature:-196°C-+165°C(-321°F-+1202°F)
Drive type:worm gear,pneumatic,electric,hydraulic.
Applicable medium:applicable for the pressures ranging from vacuum to high pressure,Cryogenic to ultra-high temperature and other kinds of applications.
Standards and Specifications
Design and manufacture standard:API609,MSS SP-68,BS EN 593
Temperatue and pressure rate conform to:ASME B16.34
Low temperature standard:BS 6364,MS SP-134
Drive flange conform to:BS EN ISO 5211
Connection flange conform to :ASME B16.5,ASME B16.47,ISO7005,EN1092
Face to face conform to :API609,MSS SP-68,ISO5752,EN558
Inspection and testing standard conform to:API 598,ISO5208
Fireproofing test conform to:BS EN ISO 10497,API607,API F6A
Valve mark conform to:MSS-SP-25
Dissipation discharge test:API622,API 624 ,ISO/CD 15848,EPA Method21
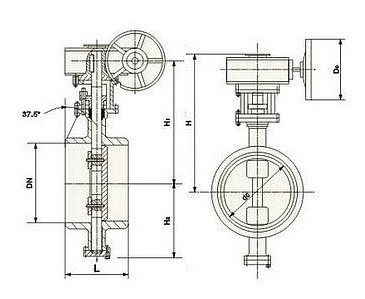
Triple Eccentric Butterfly Valve Drawing and Datasheet

| PN1.6MPa | PN1.6MPa | |||||||||||||
| DN | Outline dimension | Outline dimension | ||||||||||||
| (mm) | L | D | d | H | H1 | A | B | L | D | d | H | H1 | A | B |
| 80 | 180 | 90 | 78 | 90 | 356 | 180 | 200 | 180 | 90 | 78 | 108 | 430 | 180 | 200 |
| 100 | 190 | 110 | 96 | 106 | 387 | 180 | 200 | 190 | 110 | 96 | 108 | 392 | 180 | 200 |
| 125 | 200 | 135 | 121 | 122 | 413 | 180 | 200 | 200 | 135 | 120 | 120 | 414 | 180 | 200 |
| 150 | 210 | 161 | 146 | 136 | 459 | 270 | 280 | 210 | 161 | 145 | 135 | 494 | 270 | 280 |
| 200 | 230 | 222 | 202 | 215 | 585 | 40 | 425 | 230 | 222 | 200 | 202 | 578 | 400 | 425 |
| 250 | 250 | 278 | 254 | 247 | 649 | 400 | 425 | 250 | 278 | 252 | 235 | 673 | 400 | 425 |
| 300 | 270 | 330 | 303 | 288 | 771 | 450 | 560 | 270 | 330 | 301 | 280 | 793 | 450 | 560 |
| 350 | 290 | 382 | 351 | 333 | 929 | 450 | 560 | 290 | 382 | 351 | 315 | 921 | 450 | 560 |
| 400 | 31O | 432 | 398 | 359 | 993 | 535 | 580 | 310 | 432 | 398 | 355 | 1021 | 535 | 580 |
| 450 | 330 | 484 | 450 | 405 | 1053 | 535 | 580 | 330 | 484 | 448 | 370 | 1143 | 535 | 580 |
| 500 | 350 | 535 | 501 | 444 | 1245 | 535 | 580 | 350 | 535 | 495 | 420 | 1192 | 535 | 580 |
| 600 | 390 | 636 | 602 | 521 | 1750 | 570 | 660 | 390 | 636 | 595 | 490 | 1327 | 570 | 660 |
| 700 | 430 | 726 | 692 | 586 | 1519 | 750 | 550 | |||||||
| 800 | 470 | 826 | 792 | 659 | 1659 | 750 | 550 | |||||||
| 900 | 51O | 926 | 892 | 720 | 1829 | 750 | 550 | |||||||
| 1000 | 550 | 1028 | 992 | 780 | 1949 | 900 | 750 | |||||||
| 1200 | 630 | 1228 | 1192 | 889 | 2243 | 1000 | 925 | |||||||
| 1400 | 710 | 1428 | 1392 | 1000 | 2462 | 1000 | 925 | |||||||
Please feel free to contact with us at angela@tjfmcn.com or filling up an enquiry form instructed at the bottom.
You will get an effective response within 24 hours from TongJiang Team.
COMPANY PROFILE (Video)
floa
1. Our Factory
30 years experience of valve and pipeline industry.
10 senior technical engineers
20000 m2 production area
More than 100 employees to provide professional service.
As the reliable OEM for famous valve brand companies.
t ball valve
2. Factory Show
TongJiang Valve Technology Company was established for 30 years. There are more than 100 employees which includes 10 professional engineers.

OUR SERVICE ball valve
Reliable Quality, Competitive Price
Reply your inquiry in 2 hours with professional service.
Miss Angela
Mobile: +86 13588429004(Whatsapp)
Skype: angelazhuo1
E-mail: angela@tjfmcn.com
Tel No: +86 571 86991717
Official Website: www.zjtjvalve.com