Hospital HVAC systems are complex and crucial for maintaining a safe and healthy environment. They involve a combination of ventilation, filtration, and temperature/humidity control to prevent the spread of airborne diseases, ensure patient and staff comfort, and support medical equipment functionality.
Over the years, Jetex has been committed to the research and development of air conditioning equipment for industrial and biological purification. By absorbing the advantages of clean technologies at home and abroad, our units provide a variety of thermal-humidity and purification-sterilization treatment solutions, fully realizing functions such as refrigeration, heating, humidification, dehumidification, filtration, purification, and sterilization.

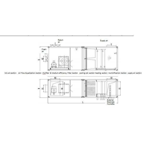
We can do Medical AHU customization involves tailoring the design and components of an AHU to meet the specific needs of a healthcare facility, ensuring optimal air quality, temperature, and humidity control.
medical AHU customization:
-
Modular Design:
AHUs can be designed with modular components (e.g., heating, cooling, filtration, humidification) that can be configured and reconfigured to meet specific needs. -
Specialized Components:
Healthcare settings often require specific features like high-efficiency filtration (e.g., MERV 14 filters), humidity control systems (e.g., steam humidifiers), and specialized materials for hygiene and corrosion resistance. -
Space Constraints:
Renovations or limited spaces in healthcare facilities often necessitate custom AHU designs to fit within existing infrastructure and meet performance requirements. -
Air Quality and Filtration:
Custom AHUs can be designed with specific filtration levels to address airborne contaminants, allergens, and other pollutants relevant to patient care. -
Energy Efficiency:
Custom AHUs can incorporate energy recovery technologies (e.g., heat recovery wheels) and variable speed drives to optimize energy consumption while maintaining desired air quality. -
Hygiene and Maintenance:
Custom designs can include features like easy-to-clean surfaces, access points for maintenance, and materials that minimize the risk of microbial growth. -
Operating Room Applications:
Operating rooms often require negative pressure environments to contain infectious agents and odorous gases, necessitating customized AHU configurations.
-
Improved air quality:
Tailored filtration and ventilation can help maintain a healthy and safe environment for patients and staff. -
Enhanced energy efficiency:
Optimized system design and component selection can lead to lower energy consumption and operating costs. -
Reduced maintenance costs:
Durable construction, specialized components, and accessible designs can minimize maintenance requirements and downtime. -
Compliance with regulations:
Custom AHUs can be designed to meet specific industry standards and regulations for healthcare facilities.
Successful cases
u Guangzhou Eighth People's Hospital
u The First Affiliated Hospital of Sun Yat-sen University
u Guangdong Provincial People's Hospital
u Shenzhen Longgang Central Hospital
u Beijing You'an Hospital
