18kg rails are relatively light, so the laying work is relatively simple, especially for some mines or mining areas with narrow and complex environments. The installation and maintenance costs are low. Compared with heavier rails (such as 30kg, 43kg rails, etc.), 18kg rails have lower production and transportation costs. For mine transportation systems with lighter loads, this is a more cost-effective option.
18kg mining rails are highly adaptable and can be used in a variety of mines and mine environments, especially in occasions with small transportation volumes or slow travel speeds, and can operate stably for a long time.
The mine environment is usually humid and the rails are susceptible to corrosion. The 18kg rails are made of high-quality steel and surface treatment technology, which enhances their corrosion resistance. At the same time, the surface hardness of the rails is high enough to effectively resist the wear of mine cars.
GB 18kg Light Steel Track
| Parameters | |||
| type | weight (kg/m) | material | length (m) |
| 18Kg | 18.06 | 55Q | 6-8m |
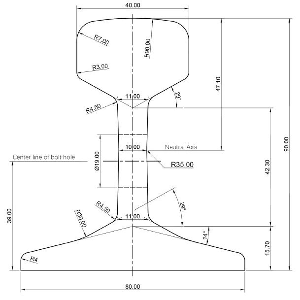
| rail height (mm) | bottom width (mm) | head width (mm) | web thinkness (mm) |
| 90 | 80 | 40 | 10 |
Light Steel Rail
| Light Steel Rail | size | Rail Height | Bottom Width | Head Width | Web Thickness | Weightkg/m |
| 8kg | 65 | 54 | 25 | 7 | 8.42 | |
| 12kg | 69.85 | 69.85 | 38.1 | 7.54 | 12.2 | |
| 15kg | 79.37 | 79.37 | 42.86 | 8.33 | 15.2 | |
| 18kg | 90 | 80 | 40 | 10 | 18.06 | |
| 24kg | 107 | 92 | 51 | 10.9 | 24.46 | |
| 30kg | 107.95 | 107.95 | 60.33 | 12.3 | 30.1 |




GNEE (Tianjin) Multinational Trade Co., Ltd.
Since 2008, our rail foreign trade company has gone through more than ten years. During this journey, we have won the trust and support of 8,000+ customers with our excellent product quality and professional service team. Our business territory has been continuously expanded and now covers more than 160 countries and regions. Today, we have more than 200 enthusiastic, professional and efficient employees, working together to create a more brilliant future.

