Colored Steel PU Sandwich Panel Production Line , Roof Panel Roll Forming Equipment
Introduction of PU sandwich panel production line
- This PU Sandwich panel production line is an automatic production line.
- In the PU sandwich panel producing procedure, the product line can continuously produce sandwich panel with PU as its core material.
- The liquid state raw materials were continuously injected into the middle of three formed panels and reacting,foaming,solidifying in the double-rubber .
- The PU sandwich panel could be cut out automatically according to the required length for users.
The main parameters of PU sandwich panel product line
- Production Material(mm):(0.25-1.0)×L, yield strength≤G300 Colored steel
- Production speed:4-8 M/min
- Production type: totally continuous production with PLC controlling
- PU foam thickness: 25-100mm
- Composite structure:position fixed by double rubber tracker
- Foaming system: totally automatically continuous foaming, quantity of foaming could be stepless adjustable
- Power of production ≥ 22KW
- Total power ≥ 35 KW
- Cutting:pneumatic piston driving, non-stop cutting via sliding table
- Electronic controlling system: full-frequency PLC controlling system
Production characteristic and use
- This machine is suitable to PU sandwich production ,such as wall panel and roofing panel .
- The panel can insulate heat,sound and prevent burn,widely used in roof panel,wall panel and so on.
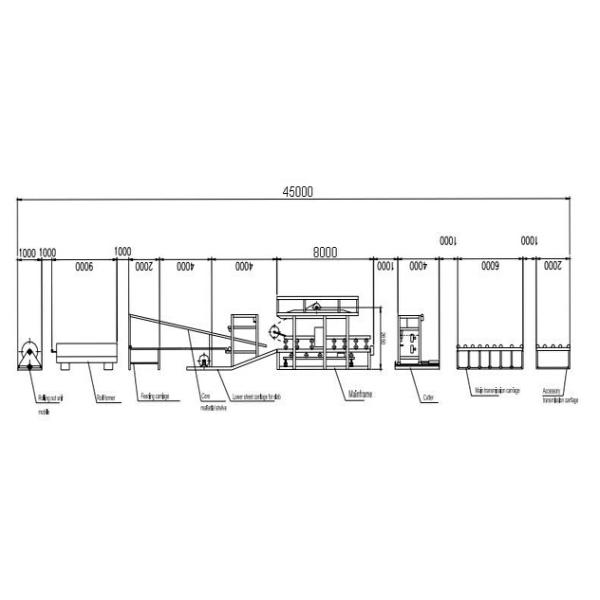
- This PU panel line consists of 10 tons automatic de-coiler with loading car, chain driven transmission, roll former, PU forming machine, PU panel conveyor, non-stop cutting device, electric controlling system.

Working flow of PU sandwich panel production line
Coiler loading → adjustable feeding guide → steel panel forming → steel sheet feeding guide → PU foaming → PU panel conveyor → non-stop cutting

Our Advantages
- High Quality
- Reliable
- Durable
- Reasonable Price
- Good after Service
- 1 Year Warranty
- More Than 10 Years Experience