35t Steel Inventory Yard L-Shape Travelling Gantry Crane
L Shape Goliath Gantry Cranes offer an economical solution to overhead cranes when the building is inadequate to support a bridge crane or the crane system is to be located outdoors. A box girder portal gantry crane is a gantry crane that utilizes a "box" configuration in fabricating the girder. This box girder design incorporates a four-sided box with a running surface plate for the hoist trolley attached to the bottom of the box. The advantage of the box girder is that it possesses greater loading capabilities and is able to apply to bigger bridge distances. The crane is generally utilized in pairs with the hoisting mechanism operating on rails attached to the top of each box girder.
Gantry portal crane can be applied to both single girder and double girder format. It is ideal for outdoor applications where lifting devices can be applied without the cost of supporting steelwork. Indoor applications are also available where with a low ceiling and overhead cranes are not suitable. Typical occasions of goliath gantry crane include steel stock yards, loading areas, the concrete industry, ship building, and workshops.
Gantry/Portal/Goliath cranes are widely used in the following applications:
1.Precast yards
2.Shipbuilding
3.Container Handling
4.Construction sites
5.Marble / Granite Industry
6.Mining Maintenance
7.Bridge Construction sites
8.Road Construction Sites
9.Stock yards
10.Scrap yards
11.Railway yards
Design features include:
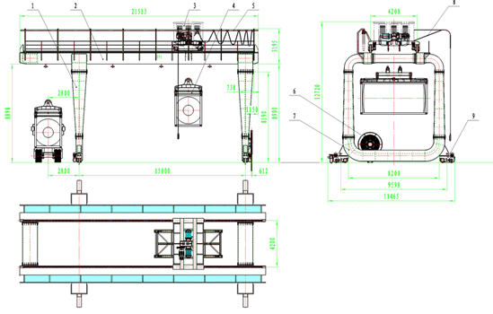
1. Main girder:
is welded of steel plates, connected by high-strength precision bolt. There are sliding rail for trolley to travel upper the girder which is fixed on outrigger by high-tension precision bolt
2. Outrigger
a). Consist of rigid outrigger and flexible outrigger, all connection points are connected by high-tension bolt
b). The ladder is used by operator to enter into cab or arriving at winch
c). when the span>30m, there need a flexible leg aiming at reducing the lateral thrust the trolley has to the rail when the girder load objects.
3. Travelling mechanism
consist of driving gear box and passive wheel box.
a). The driving gear box supplies power to realize the crane’s travelling.
b). what the difference between driving gear box and passive wheel box is that passive wheel box lacks transmission structure such as dynamo, reducer and a pair of exposed gear
4. Trolley with hoist
is made up of trolley frame, winch and pulley block
a). Trolley frame welded of steel plate is the loading and travelling mechanism of trolley with hoisting
b). Winch is the lifting mechanism of trolley..when it works, wire rope affects the pulley as rising and falling movement, which makes suspended objects lifting and lowering
Warning: wire ropes need to be examined regularly and changed in time if there is a 10% broken wires, loosen wires and wearing down.
5. Cab
a). Glass window through which one can watch overall working condition is installed in the front and two sides of the cab
b). Electric cabinet as a group of independent cabinet , fixed outside of cab is connected by control cable and linkage station which is set up in the cab
6. Electrical system
a). lifting motor, crane travelling motor and hydraulic power motor are included. The whole electrical system is controlled by PLC.
b). two ways to operate the crane: cab operating and remote controlling.
c). Electric components are imported from Schneider in Germany
7. Platform
platform is installed in order to maintain the crane, the protective guard is added to protect the safety of servicemen.
| Place of Origin: | Zhejiang, China |
| Brand Name: | Nante |
| Model Number: | MDG35t-35m-22m |
| Certification: | ISO9001:2008 |
| Max. Lifting Load | 35t |
| Span | 35m |
| Max. Lifting Height | 22m |
| Crane Travelling Speed | 6-60m/min |
| Trolley Travelling Speed | 2-30m/min |
General Drawing or Sketch or Draft Drawing

