Light Duty Double Beam Bridge Crane For Repair Shops / Factory / Warehouse
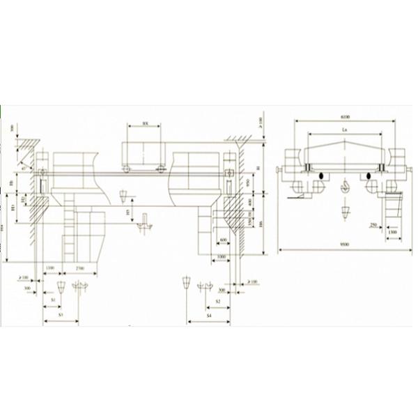
General Drawing or Sketch or Draft Drawing

Technical Parameters
| Capacity | Span | Lifting Height | Power | Long travel Mechanism | Cross Travel Mechanism | |||||||
| Pendent | Cabin | Hoist Type | Lifting Speed | Travelling Speed | ||||||||
| Speed | Motor | Power | Speed | Motor | Speed | |||||||
| t | m | m/min | Model | kW | m/min | Model | kW | m/min | ||||
| 5 | 7.5 | 6;9;12; | 3P AC 380V50 Hz | 28.72 | YSE802- 4D | 2×0.8 | 42.9 | YSE90L -4D | 2×1.5 | CD1 (MD1)5-(6,9,12) -A2 | 8;8/0.8 | 17 |
| 10.5 | ||||||||||||
| 13.5 | ||||||||||||
| 16.5 | ||||||||||||
| 19.5 | ||||||||||||
| 22.5 | ||||||||||||
| 10 | 7.5 | YSE90L -4D | 2×1.5 | CD1 (MD1)10-(6,9,12)-A2 | 7;7/0.7 | |||||||
| 10.5 | ||||||||||||
| 13.5 | ||||||||||||
| 16.5 | ||||||||||||
| 19.5 | ||||||||||||
| 22.5 | ||||||||||||
| Rail Dia. | Tread Width | Max. Wheel Load | Total Weight | Dimension | ||||||||
| K | W | L | L1 | H | H1 | H2 | h | |||||
| mm | KN | t | mm | |||||||||
| Ф300 | 37-70 | 34.43 | 4.9 | 1500 | 3000 | 3550 | 120 | 1163 | 781 | 578 | -3 | |
| 38.04 | 5.86 | 17 | ||||||||||
| 40.9 | 6.78 | 107 | ||||||||||
| 44.13 | 7.98 | 187 | ||||||||||
| 47.17 | 9.2 | 267 | ||||||||||
| 50.28 | 10.7 | 347 | ||||||||||
| 57.28 | 5.6 | 121 | 1374 | 863 | 620 | 47 | ||||||
| 62.68 | 6.68 | 187 | ||||||||||
| 67.38 | 8.04 | 277 | ||||||||||
| 72.03 | 9.65 | 427 | ||||||||||
| 76.66 | 11.37 | 527 | ||||||||||
| 80.99 | 13.05 | 607 | ||||||||||
Light Duty Double Girder Overhead Cranes for Repair Shops
This is 25 ton QD box type Electric Overhead Travel bridge crane which use winch as lifting mechanism, When heavy duty and wide spans are required, the electric double beams electric overhead travelling cranes for construction show their strength. They consist of two torsion-free box girders. This makes them especially suitable for lifting and transporting heavy loads.
Double beam overhead industrial crane is characterized by strong bearing, big span, and overall stability with various models, but their quality is better compared with single girder gantry crane with the same capacity. They are available with load capacities up to 50T and with spans up to 35 m. Articulated end carriage joints ensure positive contact of all four wheels with the track. The range of fixing arrangements allows the appropriate integration of double girder travelling cranes into new buildings as well as into existing buildings. Just as with all other types of double girder travelling cranes, the profiles of the main girder are optimally produced using computers so that maximum performance with a minimum of dead-weight can be achieved. An advantage that has financial benefits.
Double girder overhead crane with hoist are widely used in the following applications:
1. Light duty cranes for repair shops, light assembly operations, service buildings, light warehouses, where service requirements are infrequent.
2. Medium duty cranes for machine shops and general industrial use both indoor and outdoor application.
3. Extra heavy duty cranes for steel mills and other heavy machine shops, steel warehouses, heavy fabrication shops, paper mills etc. with magnet and bucket operation for scrap yards, fertilizer plants & induction furnace.
4. Extra heavy duty cranes for steel mills and other heavy engineering purposes. Cranes designed for hot metal application on request.
Design features include:
DESIGN:
Compact dimensions, low weight, easy to operate and easy to maintain, modular design with direct fits between components
Structure:
Bridge Girder, End carriages, Crab Frame manufactured from box plate design / Rolled Sections. If required 100% radiography of all butt welding joints of bridge and end carriages can be provided.
MOTORS:
Nante Crane uses sturdy cylindrical/ conical rotor pole-changing motors with elegant continuous cast aluminum sections, integrated safety brakes insulation class F, IP54 protection.
Variable Frequency Drives & Remote Controls:
We also offer Variable Frequency Drive in hoisting, cross travel, long travel for stepless speed control as an optional feature. We also provide radio remote control cranes for application in inaccessible and hazardous areas.
Brakes
Failsafe magnetic or hydraulic brakes of 150% torque or more are fitted on shaft extensions. For heavy duty cranes a second brake can be mounted to ensure failsafe operation.
Controls
Pendant control from floor, master control switches, master controllers in the driver's cabin can be provided. Radio remote control can be provided on request.
ELECTRICAL PANEL:
Modular design, covering a very wide operating range. The systems are designed for ease of installation and maintenance and reliable operation, with fuseless circuitry, ducted wiring and non-screwed terminals. Each drive group is equipped with a motor overload protection device to provide effective protection against inadmissible overloading.
PAINTING:
Every component & part is thoroughly scrubbed & painted with two coats of primer before assembly & two coats of synthetic enamel after testing.
LIMIT SWITCHES:
To prevent over hoisting & over lowering of hook.
