Introduction:
Flow control valve is a self-self-control and to keep traffic flowing through the system to be controlled valve constant pressure change their use of media, and has a flow indication, easy adjustment, flow control applied to heating and air conditioning and other non-corrosive media . Before running a one-time adjustment, you can make the system flow rate constant at the set value is automatically required.
This vavle is suitable on system such as petroleum, chemical industry, foodstuff, medicine, papemaking, water and electricity, shipping, plumbing, the smelting and sources of energy etc the pipe route. Can regard on gas, liquid, semifluid as well as solid powder pipes and power lines and the container of many kinds of corrosiveness and non-corrosiveness adjusts and dams a river the equipment use. Especially extensively being in high layer of building fire protection system reaches other to show in the pipes and power lines system of valve of vavle switch state.
Technical data
| PN(MPa) Nominal pressure | 1.6 |
| (MPa) Shell testing | 2.4 |
| ℃ Working temperature | 0-100 |
| Suitable mediums | Water, oil and so on non- corrosive liquid |
Parameter:

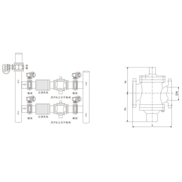
Main dimensions
| DN (mm) | L | Hi | H2 | m3h Current capacity | Connection way |
| 15 | 110 | 72 | 70 | 0.1-1 | |
| 20 | 110 | 72 | 70 | 0.1-1.5 | |
| 25 | 115 | 81 | 74 | 0.2-2 | Thread |
| 32 | 160 | 108 | 91 | 0.5-4 | |
| 40 | 200 | 138 | 147 | 卜6 | |
| 50 | 215 | 138 | 147 | 2-10 | |
| 65 | 230 | 143 | 154 | 3-15 | |
| 80 | 275 | 170 | 189 | 5-25 | |
| 100 | 290 | 193 | 211 | 10-35 | |
| 125 | 310 | 208 | 227 | 15-50 | Flange |
| 150 | 350 | 254 | 260 | 30-80 | |
| 200 | 430 | 289 | 303 | 40-180 | |
| 250 | 520 | 325 | 367 | 100-300 | |
| 300 | 635 | 357 | 430 | 150-1500 | |
| 350 | 670 | 372 | 495 | 200-700 |
Main Material:
FAQ:
Q1. What is your payment term?
A: T/T 30% down payment, balance to be paid before shipment. or L/C.
Q2: What is your main market?
A: Western Europe, North America, Janpan,,
Q3: Can I get samples from your factory?
A: Yes, sample is free, but the express charge is yours.
Q4: If products have some quality problem, how would you deal with?
A: We will responsible for all the quality problems.
Q5.Are you manufacturer or trading company?
A.We are manufacture(cast iron) and trade company.
Q6. what’s the payment term?
A. We accept T/T, L/C,WESTERN UNION
Q7. What’s the delivery time ?
Pattern needs 30-60 days, sample need 30-50 days.
The first order need 60 days
Q8. What is the standard of package?
A. Export standard package or special package according to customer requirement.
Q9. Do you accept OEM business?
A. Yes, we are OEM supplier.
Q10. what kind of certificate you have ?
A .We have ISO9001, ISO14001,PED,SGS