Large Area Stainless Steel Warehouse Freight Elevator Two Panel Side Opening Door
Freight Elevator
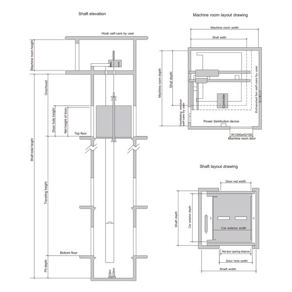
1.AII the constructions in the shaft should be fireproofing. Extra holes Such as equipments and power which have nothing to do
with elevator are forbidden.
2.Shall should be vertical and the horizontal size should be the minimum clearance size. The vertical error should more than…
3.if the space below the bottom of pit can be reached. counterweight buffer should be fixed in the firm center of pit, or please ask
the elevator manufactor for the installation of counterweight safty gear.
4.Before the installation, all the landing door halls should have at least 1.2 meter safe guard fence. And the strength should be
confirmed.
5.Enclosed shaft should set airventilators according to the requests(generally in the top and bottom of the shaft). The size should
not less than 1% of horizontal area of the shaft. And protective nets are needed.
6.After the finish of installation. elevator hall doors. hall indicators reserved holes and other reserved holes should be filled.
7.Shaft preferably is reinforce concrete construction. lf the shaf is frame construction. we should install reinforce concrete beam
300mm tall and as wide as shaft at guide rail bracket. If the construction is solid load bearing brick wall, we need to install the
same beam on the top and bottom of hall doors reserved holes.
8.When the distance between two neigbouring door sills surpass 11 meters. we need to set a safty door opened to maintainers
only. The size should not less than 350mm width and 1800mm height.
9.Pit should be waterproof, if plash is needed, set it in the corner.
10.According to the requests of technical parameter, to pull power supply into machine room, install protective switch and lock. The
wave range should not surpass±7%. Zero line and earthing cabIe should be separated. And ground impedance value should no
more than 4.
11 .The temperature in machine room should keep to 5-40 degree. Machine room should be plate and can bear at least 7.0KN/sq.
m. When the floor in machine room is uneven and the discrepency is more than 500mm, stair or footstep with guardrail is needed.
12.User should set rescue dutyroom and lay one six wicks wire for every machine room(we recommend). The wick should be 0.75
square millimeter at least.
Freight elevator specifications
| Load (kg) | speed (m/s) | Exterior size of car width X depth X height (mm) | Net door opening width X height (mm) | Shaft Net Size | Machine Room Net Size | Door Open type | |||
| width X depth (mm) | Overhead height | Pit depth | width X depth (mm) | height (mm) | |||||
| 6300 | 0.5 | 1200x1500x2200 | 1100X2100 | 2100X1860 | 4200 | 1500 | 2500X3000 | 2200 | Two panel side opening |
| 1000 | 0.5 | 1500x1800x2200 | 1200X2100 | 2250X2160 | 4200 | 1500 | 3000X3000 | 2200 | Two panel side opening |
| 2000 | 0.5 | 1570x2900x2200 | 1500X2100 | 2700X3260 | 4200 | 1500 | 3500X3000 | 2500 | Two panel side opening |
| 1.0 | 4500 | 1500 | |||||||
| 1.5 | 2000x2300x2200 | 2850X2660 | 4500 | 1600 | Four panel center opening | ||||
| 2.0 | 4800 | 1800 | |||||||
| 3000 | 0.25 | 2070x3050x2200 | 1800X2100 | 3300X3410 | 4500 | 1500 | 3800X4200 | 2500 | Four panel center opening |
| 0.5 | |||||||||
| 3200 | 1.0 | 2070x3100x2200 | 1800X2100 | 3300X3460 | 4500 | 1500 | 3800X4200 | 2500 | Four panel center opening |
| 5000 | 0.25 0.5 | 2800x3400x2500 | 2000X2200 | 4200X3800 | 5000 | 1600 | 4200X3800 | 2800 | Four panel center opening |
| 7000 | 0.25 0.5 | 3000x4200x2500 | 2600X2400 | 4500X4600 | 5000 | 1600 | 4500X4600 | 2800 | Four panel center opening |
| 10000 | 0.25 | 3070x5760x2500 | 2600X2400 | 4900X6200 | 5000 | 1600 | 4900X6200 | 2800 | Four panel center opening |
Freight Elevator Construction Layout Drawing




FAQ
1. Are the elevator wire ropes durable?
The elevator wire rope has special provisions and requirements. Configuration is not only for wire rope and rated load, but also considered the size of the traction, as a result, the tensile strength of wire rope is greater than the weight of the lift. The safety factor is equipped with more than four wire rope. So it won’t break at the same time.
2. Is it dangerous for power failure suddenly during the elevator running?
If it occurs, the elevator will automatically stop due to the electrical and mechanical safety device. In case of power failure,elevator brakes will automatically taken. In addition, the power supply departments such as planned outage, prior notice are also operating.
3. Will us be hurt when it closed suddenly?
In the closing process, if people touch the hall door, the door of elevator will automatically restart without any danger. With anti clamping switch, once the gate touched, this switching action make the elevator unable to be closed and even reopened. In addition, closing force is also available here.
4. How the elevator running?
Elevators are operated with a counterweight wire rope through the (tractor) traction drive, making ups and downs on the guide rail.
5. Is the escalator installation complicated?
We believe the functions of an escalator are not necessarily proportional to the operation complexity. Therefore, escalators designed by us apply an integrated structure, so that the equipment is more precise and more efficient and allows easier and more convenient commissioning.
6. Do you have any cerifications?
Yes, we do with ISO9001 / CCC / CE Certificates for u.