T304 , T316L Stainless Steel Sanitary Valves - Electric Actuated Sanitary Threaded Butterfly Valve
Electric actuated sanitary threaded butterfly valve is electric actuator operated sanitary butterfly valves with male/female threaded ends. We provides full line electric threaded butterfly valve from 1/2″ to 8″ in stainless steel T304, T316L etc. The electric actuator can be selected upon client’s request, either of China origin or EU/USA brand. Sanitary butterfly valve is our strength sanitary valves , it comply with 3A, DIN, SMS, ISO, DS standards etc, with excellent precision and high purity surface. Wellgreen is your reliable partner for processing controlling of Food, Brewery, Beverage, Dairy, Pharmaceutical etc.
Strengths:
Parameter of Electric Actuator:
Application:
Pharmacy, Beer, Food, BioPharm, Dairy, Beverage, Biotech, Cosmetics etc.
| PRODUCT | Electric Actuated Sanitary Threaded Butterfly Valve |
|---|---|
| DIMENSION | 1/2″ ~ 8″ |
| MATERIAL | T304, T316L, 1.4301, 1.4404 etc. |
| STANDARD | 3A, DIN, SMS, ISO, ISO, DS etc. |
| SEALING GASKET | EPDM, NBR, FPM, Silicone etc. |
| TEMPERATURE | -2°C / 28.4°F up to +60°C/ +140°F |
| PRESSURE | 0.2 – 10bar |
| CONNECTION | Male/Female Threaded Ends |
| OPERATION | Electric actuator |
| APPLICATION | Pharmacy, Beer, Food, Petroleum, Dairy, Beverage,Biotech ,Cosmetics etc. |
| How to order | *Part Name*Size
*Material *Quantity *Standard |

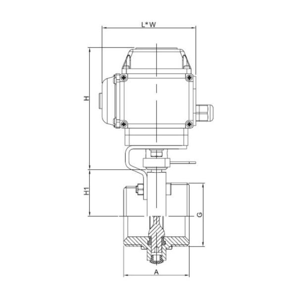
Dimension of Electric Actuated Threaded Butterfly Valve -DIN Series
| SIZE | A | H | H1 | Rd | L*W |
| DN10 | 68 | 141 | 41 | RD28*1/8 | 162*115 |
| DN15 | 68 | 141 | 41 | RD34*1/8 | 162*115 |
| DN20 | 68 | 141 | 41 | RD44*1/6 | 162*115 |
| DN25 | 68 | 141 | 41 | RD52*1/6 | 162*115 |
| DN32 | 68 | 141 | 45 | RD58*1/6 | 162*115 |
| DN40 | 68 | 141 | 47 | RD65*1/6 | 162*115 |
| DN50 | 76 | 141 | 55 | RD78*1/6 | 162*115 |
| DN65 | 80 | 141 | 64 | RD95*1/6 | 162*115 |
| DN80 | 82 | 141 | 71 | RD110*1/4 | 162*115 |
| DN100 | 88 | 141 | 81 | RD130*1/4 | 162*115 |
| DN125 | 128 | 153 | 116 | RD160*1/4 | 208*122 |
| DN150 | 146 | 153 | 136 | RD190*1/4 | 208*122 |

Dimension of Electric Actuated Threaded Butterfly Valve -SMS Series
| SIZE | A | H | H1 | Rd | L*W |
| ?19 | 68 | 141 | 41 | RD36*1/8 | 162*115 |
| ?25 | 68 | 141 | 41 | RD40*1/6 | 162*115 |
| ?32 | 68 | 141 | 41 | RD48*1/6 | 162*115 |
| ?38 | 68 | 141 | 45 | RD60*1/6 | 162*115 |
| ?51 | 76 | 141 | 53 | RD70*1/6 | 162*115 |
| ?63 | 80 | 141 | 59 | RD85*1/6 | 162*115 |
| ?76 | 82 | 141 | 66 | RD98*1/6 | 162*115 |
| ?89 | 82 | 141 | 71 | RD105*1/6 | 162*115 |
| ?102(S) | 88 | 141 | 79 | RD125*1/4 | 162*115 |
| ?102(L) | 88 | 141 | 81 | RD132*1/6 | 162*115 |

Dimension of Electric Actuated Threaded Butterfly Valve -3A Series
| SIZE | A | H | H1 | G | L*W |
| 1″ | 68 | 141 | 41 | 37.1*1/8Acme | 162*115 |
| 11/4″ | 68 | 141 | 41 | 45.9*1/8Acme | 162*115 |
| 11/2″ | 68 | 141 | 44 | 50.6*1/8Acme | 162*115 |
| 2″ | 76 | 141 | 53 | 64.1*1/8Acme | 162*115 |
| 21/2″ | 80 | 141 | 59 | 77.6*1/8Acme | 162*115 |
| 3″ | 80 | 141 | 66 | 91.1*1/8Acme | 162*115 |
| 4″ | 104 | 141 | 79 | 119.2*1/6Acme | 162*115 |
*All dimension are in mm except specified.
For more information, please contact us.