Din Cast Steel Metal Seat Check Valve Lifting Type One Way Non Return Valves H41H
Description:
A lifting check valve is a check valve in which the disc, sometimes called a lift, can be lifted up off its seat by higher pressure of inlet or upstream fluid to allow flow to the outlet or downstream side.
Quick Details:
1. Type: Din Lifing Check Valve
2. Bonnet Type:
Bolted Bonnet / Pressure Seal Bonnet
3. Disc Type: Lifting, Plug Disc
4. Size Range: Dn15 - Dn400
5. Pressure Ratings: Pn16 - Pn100
6. End Connections: Flanged (RF, RTJ), Butt welding (BW).
7. Materials: Cast Steel in GS-C25, 1.4308, 1.4408, WCB, LCB, CF8, CF8M, CF3, CF3M, WC6, WC9, C5, C12, 4A, 5A or Equivalent,
8. Various trim materials available to suit service conditions
9. NACE MR 0175
Standards
| Design & Manufacture | DIN 3840 |
| Face to Face Dimension | DIN 3202 |
| Flange Ends Dimension | DIN 2543, DIN 2544, DIN 2545, DIN 2546, DIN 2548, BS EN 1092-1 |
| Test & Inspection | DIN 3230 |
Features:
1. Generally
Bolted Bonnet; Swing and Lift Disc; Metallic Seating Surfaces
2. Body and Bonnet Connection
Bolted bonnet
3. Cover Gasket Style
Stainless steel + flexible graphite wounded gasket
Metal gasket
Metal ring gasket
Pressure seal bonnet
4. Seat
For carbon steel check valve, the seat is usually forged steel. The seat sealing surface may be spray-welded with hard alloy if specified by the customer. For Stainless steel check valve, integrai seat is usually adopted, or it can be machined integrally after hard alloy welded. The threaded or welded type seat is also optional for stainless steel check valve if being requested by the customer.

Descriptions:
1. Din Check Valve Lifting Type Parts and Material List:
| Part Name | Material | |||||
| CS/ Trim 1 | CS/ Trim 8 | CS/ Trim 5 | Stainless Steel | |||
| 1 | Body | DIN 17245 GS-25 + CR13 | DIN 17245 GS-C25 + STL | DIN 17245 GS-C25 + STL | DIN 17445 1.4308 | DIN 17445 1.4408 |
| 2 | Disc | DIN 17245 GS-C25 + CR13 | DIN 17245 GS-C25 + CR13 | DIN 17245 GS-C25 + STL | DIN 17445 1.4308 | DIN 17445 1.4408 |
| 3 | Nut | ASTM A194 2H | ASTM A194 2H | ASTM A194 2H | ASTMA194 8 | ASTMA194 8 |
| 4 | Bolt | ASTM A194 B7 | ASTM A194 B7 | ASTM A194 B7 | ASTMA193 B8 | ASTMA193 B8 |
| 4 | Nut | ASTM A194 2H | ASTM A194 2H | ASTM A194 2H | ASTMA182 F304 | ASTMA182F3I6 |
| 5 | Gasket | SS Spiral Wound W/^aphitc, or SS Spiral Wound W/PTFE, or Reinforced PTFE | ||||
| 6 | Cover | DIN 17245 GS-C25 | DIN 17245 GS-C25 | DIN 17245 GS-C25 | DIN 17445 1.4308 | DIN 17445 1.4408 |
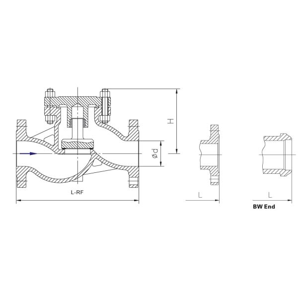
2. Main Connection Dimensions:

| PN16(DIN32O2-F1) | |||||||||||||||||
| DN | mm | 15 | 20 | 25 | 32 | 40 | 50 | 65 | 80 | 100 | 125 | 150 | 200 | 250 | 300 | 350 | 400 |
| L-RF | mm | 130 | 150 | 160 | 180 | 200 | 230 | 290 | 310 | 350 | 400 | 480 | 600 | 730 | 850 | 980 | 1100 |
| L-BW | mm | 130 | 150 | 160 | 180 | 200 | 230 | 290 | 310 | 350 | 400 | 480 | 600 | 730 | 850 | 980 | 1100 |
| H | mm | 77 | 77 | 80 | 85 | 95 | 105 | 120 | 130 | 140 | 155 | 180 | 215 | 260 | 315 | - | - |
| PN25 (DIN3202-F1) | |||||||||||||||||
| DN | mm | 15 | 20 | 25 | 32 | 40 | 50 | 65 | 80 | 100 | 125 | 150 | 200 | 250 | 300 | 350 | 400 |
| L-RF | mm | 130 | 150 | 160 | 180 | 200 | 230 | 290 | 310 | 350 | 400 | 480 | 600 | 730 | 850 | 980 | 1100 |
| L-BW | mm | 130 | 150 | 160 | 180 | 200 | 230 | 290 | 310 | 350 | 400 | 480 | 600 | 730 | 850 | 980 | 1100 |
| H | mm | 100 | 105 | 120 | 130 | 135 | 149 | 160 | 169 | 194 | 222 | 255 | 305 | 355 | 410 | - | - |
| PN40 (DIN3202-F1) | |||||||||||||||||
| DN | mm | 15 | 20 | 25 | 32 | 40 | 50 | 65 | 80 | 100 | 125 | 150 | 200 | 250 | 300 | - | - |
| L-RF | mm | 130 | 150 | 160 | 180 | 200 | 230 | 290 | 310 | 350 | 400 | 480 | 600 | 730 | 850 | - | - |
| L-BW | mm | 130 | 150 | 160 | 180 | 200 | 230 | 290 | 310 | 350 | 400 | 480 | 600 | 730 | 850 | - | - |
| H | mm | 100 | 105 | 120 | 130 | 135 | 149 | 160 | 169 | 194 | 225 | 255 | 305 | 360 | 415 | - | - |
| PN63 (DIN 3202-F2) | |||||||||||||||||
| DN | mm | 15 | 20 | 25 | 32 | 40 | 50 | 65 | 80 | 100 | 125 | 150 | 200 | 250 | 300 | - | - |
| L-RF | mm | 210 | 230 | 230 | 260 | 260 | 300 | 340 | 380 | 430 | 500 | 550 | 650 | 775 | 900 | - | - |
| L-BW | mm | 210 | 230 | 230 | 260 | 260 | 300 | 340 | 380 | 430 | 500 | 550 | 650 | 775 | 900 | - | - |
| H | mm | 100 | 110 | 125 | 140 | 168 | 170 | 188 | 205 | 230 | 240 | 265 | 310 | - | - | - | - |
| PN100 (DIN3202-F2) | |||||||||||||||||
| DN | mm | 15 | 20 | 25 | 32 | 40 | 50 | 65 | 80 | 100 | 125 | 150 | 200 | 250 | 300 | - | - |
| L-RF | mm | 210 | 230 | 230 | 260 | 260 | 300 | 340 | 380 | 430 | 500 | 550 | 650 | 775 | 900 | - | |
| L-BW | mm | 210 | 230 | 230 | 260 | 260 | 300 | 340 | 380 | 430 | 500 | 550 | 650 | 775 | 900 | - | - |
| H | mm | 100 | 110 | 125 | 140 | 170 | 185 | 200 | 235 | 265 | 310 | 350 | 400 | - | - | - | - |