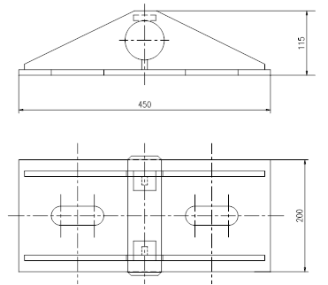
Bailey Bridge Bearing and baseplates
1 Bailey Bridge Component
2 Receive the Press Power from the girder
3 Helpful to the Bridge Locating on Abutment
the end post of bridge supports the axial girder of bridge chair. The axial girder is divided into three sections. While erecting single-row bridge, the end post of truss supports the middle section of axial girder; while erecting dual-row bridge, using two bridge chairs, the end post supports respectively the middle section of the two axial girders of bridge chair; while erecting triple-row bridge, using still two bridge chairs, the end post of internal row supports the middle section of one axial girder of bridge chair, and the end post of middle and exterior row supports respectively the side section of the other axial girder of bridge chair.
Compact-100 bearing and baseplates


Compact 200 Bearing and baseplates

